Amedeo La Nave
Architetto
Progetti
Profilo
Contatti
•
•
architetture
• 1
• 2
•
3
•
4
oggetti • 1 • 2 • 3 • 4
• visualizza
nome
tipologia
data
luogo
•
•
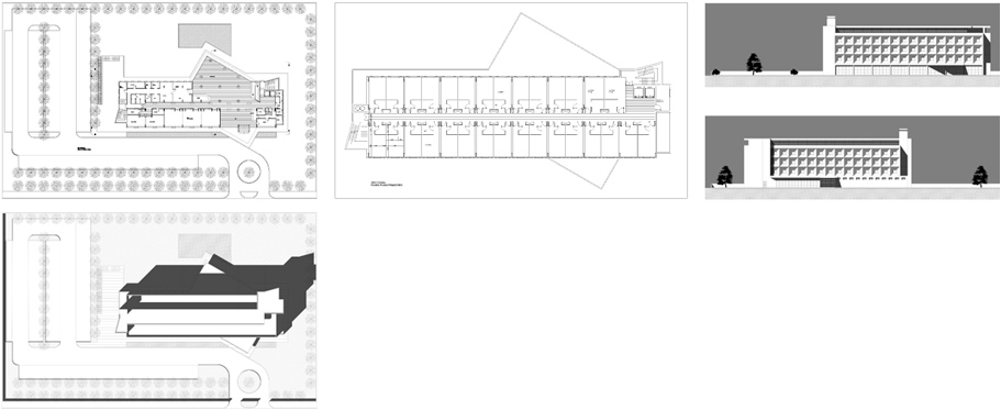
Hotel IBIS
Foggia, Italia
1993 - 1994
info
disegni
renderings
fotografie
crediti